Kerr’s Residence

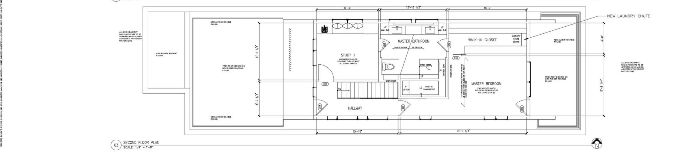
There arises a necessity for additional rooms to accommodate the influx of relatives during large family reunions. Given the ongoing pandemic, the couple expresses a strong desire for separate study spaces during the day. Furthermore, considering the child's growth and evolving needs, it becomes evident that a dedicated bedroom will be essential in the future. Thus, the imperative for a two-story addition becomes apparent.

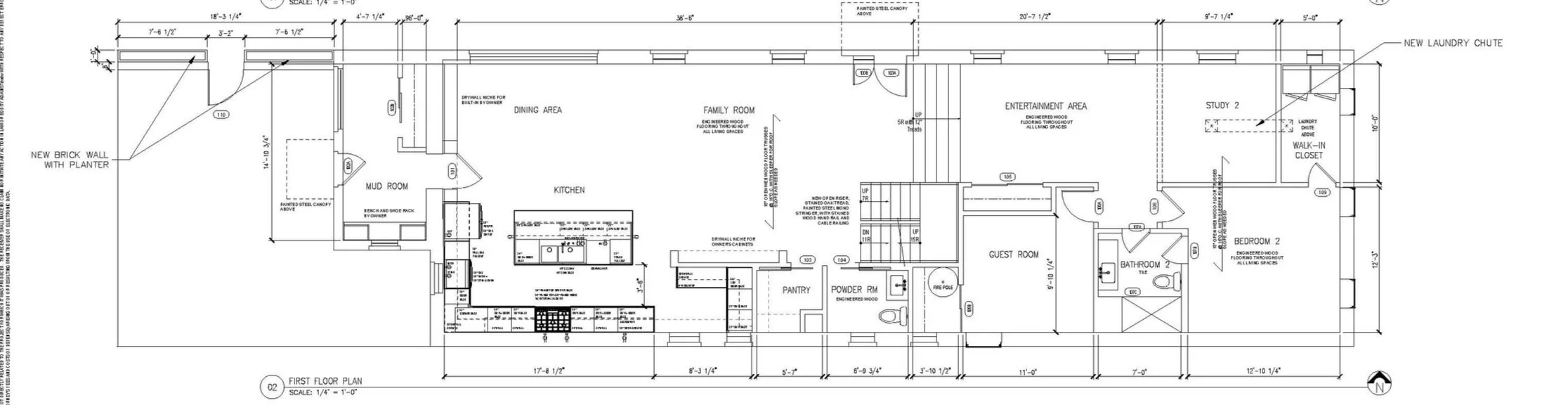
Pragmatically, our goal was to spatially reorganize the function of the ground floor with a big kitchen, add more natural light, and provoke a more thoughtful relationship between private rooms and communal area.

Previous
Previous

Rotary Hotpot Restaurant | Complete

Next
Next

Condo S | Complete